Gastronomie am Schlossufer

Projekt Gastronomie am Schlossufer Aschaffenburg

Im Rahmen der Projektarbeit „Multimediale Kommunikation und Dokumentation in der Umsetzung“ im vierten Semester haben MKD-Studierende eine Gastronomie für das Schlossufer Aschaffenburg entworfen. Die Aufgabenstellung der Projektarbeit wurde durch das Stadtplanungsamt formuliert: Wie könnte eine Gastronomie am Kranichplatz des bis 2025 neugestalteten Schlossufers aussehen? Unter Leitung von Prof Dr.-Ing. Jens Elsebach sollten die Studierenden sowohl die Kunden der Gastronomie als auch die potentiellen Betreiber in einem zweiseitigen menschzentrierten Gestaltungsprozess in den Fokus Ihrer Entwürfe rücken. Vier Projektgruppen mit jeweils drei Gruppenmitgliedern stellten sich im SoSe 21 dieser spannenden Aufgabe. Die eigentlichen Gastronomieentwürfe wurden mittels der BIM-Planungsmethode (Building Information Modeling) mit aktuellsten Softwarewerkzeugen umgesetzt, die die Studierenden in dem Drittsemesterprojekt „Digital Twin City“ bereits kennengelernt hatten. Darüber hinaus wurden die Entwürfe fotorealistisch 3D-visualisiert. So sind im Projekt zum Beispiel virtuelle Begehungen mit Hilfe von GameEngines entstanden, die einen vollumfänglichen virtuellen Besuch der Gastronomie ermöglichen. Einige Impressionen dieser Entwürfe finden Sie auf dieser Seite.

Die Planung der Gastronomie verlief dabei in den Schritten des menschenzentrierten Entwicklungsprozesses:

  • Schritt 1: Analyse des Nutzungskontextes

    Zuerst galt es, den Nutzungskontext einer potentiellen Gastronomie am Schlossufer festzustellen. Dabei wurde sowohl die Perspektive der potentiellen Besucher als auch des Gastronomieanbieters berücksichtigt:

    • Wer sind die Benutzer des Konzeptes / der Gastronomie? Welche Eigenschaften, Merkmale, Kenntnisse und Fähigkeiten weisen diese auf?
    • Was ist die Aufgabe? Welche Aktivitäten werden zur Erfüllung dieser benötigt, wie wirken sich Fehler aus, was sind mögliche Fehlbedienungen?
    • Welche Arbeitsmittel werden dafür benutzt? Welche Hardware, Software und welche Materialien?
    • Was ist die Umgebung, in dem das Konzept sich befindet? Welche räumlichen, physikalischen, organisationsbezogene und soziale, gesetzliche und kulturelle Umgebungen wirken darauf ein?

    Als Grundlage für die Herleitung des Kontextes wurde gruppenübergreifend eine Online-Befragung durchgeführt, die nach der Zusammenführung des gesammten Nutzungskontextes von den einzelnen Gruppen individuell mit ihren Ideen abgeleitet wurde.

  • Schritt 2: Festlegen der Nutzungsanforderungen

    Nach der Analyse des Nutzungskontextes wurden die daraus resultierenden Nutzungsanforderungen gruppenspezifisch abgeleitet. So wurden allgemeine bauliche Anforderungen wie eine barrierefreie und nicht diskriminierende Planung z.B. zusätzlich in Nutzungsanforderungen begründet und als Entwicklungsaufgaben abgeleitet. Aus dem Nutzungskontext wurden aber auch kreative neue Umsetzungsideen wie z.B. eine Fahrradservicestation oder eine Pick-up-Station für vorbeigehende Besucher der Gastronomie abgeleitet.

  • Schritt 3: Entwickeln der Gestaltungslösungen

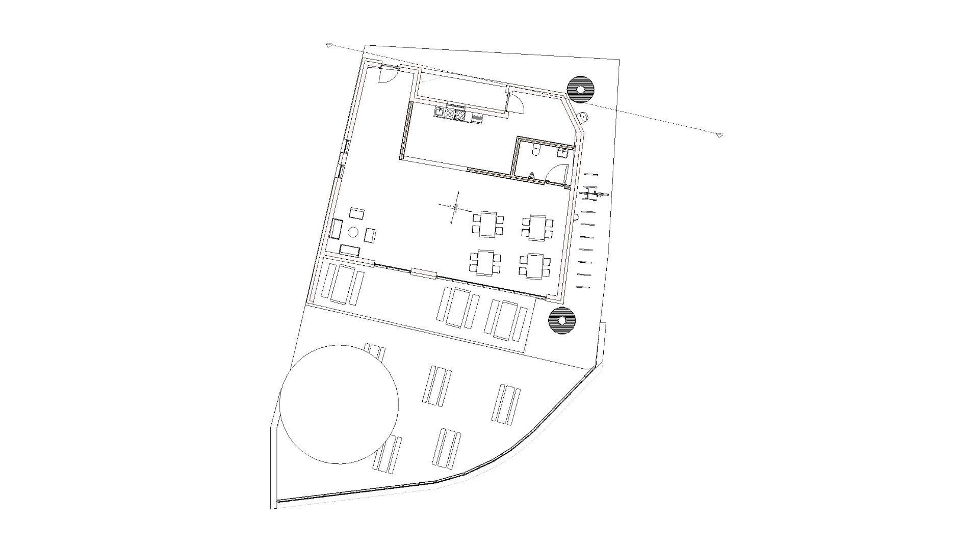
    Nachdem die Anforderungsliste erstellt wurde, die die Gastronomie erfüllen soll, wurden die genauen Gestaltungslösungen dreidimensional als BIM (Building Information Model) umgesetzt. Hoher Wert wurde auf die Ergonomie gelegt. Aus der Literatur ermittelte Konstruktions- und Mindestabstandswerte wurden in der 3D Planung überprüft und angepasst. Die fotorealistische 3D-Visualisierung wurde mit GameEngines vorgenommen und sogar sich bewegende Menschen und Tiere eingesetzt. Die 3D-Visualisierungen können als virtuelle Begehungen einen realistischen Eindruck der Entwürfe am Schlossufer bieten. Mit den erzeugten Daten ist eine Begehung als Virtual Reality Experience möglich.

Planungsprozess

Zuerst wurden schon während der Erfassung des Nutzungskontextes verschiedene Skizzen und Entwürfe gestaltet, wie die Gastronomie aussehen könnte. Auf Basis dessen wurde sich für ein Entwurf entschieden.
Dieser wird im nächsten Schritt weiter bearbeitet und angepasst.

Renderings

Nachfolgend sind ausgewählte Renderings der von den Studierenden geplanten Gastronomie am Kranichplatz unterhalb des Schlosses Johannisburg aufgeführt:

Gruppe 1: Robin Dosch, Lucien Gharbi, Patricia Schenk – Visualisierung mit Twinmotion

Gruppe 4: Paul Erhard, David Köberlein, Marc Wohlfart – Visualisierung mit Enscape™

© 2025 Technische Hochschule Aschaffenburg